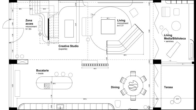
Proiectul vizează amenajarea și mobilarea zonelor de zi din cadrul unei locuințe contemporane cu caracter permanent, prin reconversia unor spații ce au avut anterior altă funcțiune. Suportul de lucru poate fi selectat de studenți din trei variante structurale distincte (beton, lemn sau metal), fiecare dintre acestea integrând posibilitatea de realizare a unei supante. Locuința este destinată unui cuplu, iar condiționările de temă conduc către o configurare mai degrabă maximală a locuinței, atât ca spațiu dar și ca buget. Modul de operare ales pentru un interior domestic combină o dezvoltare abstractă derivată din concept cu o dezvoltare apropiată de realitate prin interpretarea cerințelor și referințelor impuse de profilul locuitorilor, pe care tot studenții îl conturează. Demersul integrează și îndrumarea unui inginer de rezistență, astfel încât operarea asupra unui spațiu existent să fie experimentat și din perspectivă tehnică.
EN
The project aims to arrange and furnish the living areas of a contemporary permanent home, by converting spaces that previously had another function. The work support can be selected by students from three distinct structural variants (concrete, wood or metal), each of which integrates the possibility of creating a split level. The home is intended for a couple, and the theme leads to a rather maximal configuration of the home, both in terms of space and budget. The operating mode chosen for a domestic interior combines an abstract theme derived from the concept with a development close to reality by interpreting requirements and references imposed by the profile of the inhabitants, which the students also outline. The approach also integrates the guidance of a structural engineer, so that the operation on an existing space is also experienced from a technical perspective.
AMENAJARE ZONĂ DE ZI ÎN CADRUL UNEI LOCUINȚE CONTEMPORANE
Atelierul de proiectare sem 1-Anul 1
2023-2024
Maja Bâldea
FAUT
Beatrice Lucaci
FAUT
Marius Moșoarcă
FAUT
Created Date
April 23, 2024
Created By
georgianaciupitu
Select the fields to be shown. Others will be hidden. Drag and drop to rearrange the order.