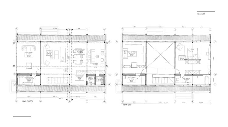
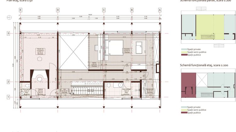
RO: Proiectul vizează amenajarea și mobilarea zonelor de zi și de noapte din cadrul unei locuințe contemporane cu caracter permanent, prin adaptarea unei construcții pre-existente, iar condiționările de temă conduc către o configurare maximală a locuinței, atât ca spațiu dar și ca buget. Locuința este destinată unei personalități din lumea contemporană reală, cu activitate în sfera artistică în sens larg. Soluția presupune înțelegerea profilului și aspirațiilor beneficiarului, conceptul amenajării traducând preferințele sale plastice și stilistice.

Suportul de lucru poate fi selectat de studenți din trei variante structurale distincte (beton, lemn sau metal), fiind livrate în acest sens 3 exemple constructive. Demersul integrează și îndrumarea unui inginer de rezistență, astfel încât operarea asupra unui spațiu existent să fie experimentat și din perspectivă tehnică.

EN: The project aims the design and furnishing of the day and night areas within a contemporary home with a permanent character, by adapting a pre-existing construction. The thematic conditions lead to a maximum configuration of the home, both in terms of space and budget. The home is intended for a personality from the real contemporary world, with activity in the artistic sphere in a broad sense. The solution involves understanding the profile and aspirations of the beneficiary, the design concept translating his plastic and stylistic preferences.

The work support can be selected by students out of three distinct structural variants (concrete, wood or metal), with 3 constructive examples being delivered in this regard. The approach also integrates the guidance of a structural engineer, so that the operation on an existing space is also experienced from a technical perspective.

Select the fields to be shown. Others will be hidden. Drag and drop to rearrange the order.
  • Image
  • SKU
  • Rating
  • Price
  • Stock
  • Availability
  • Add to cart
  • Description
  • Content
  • Weight
  • Dimensions
  • Additional information
Click outside to hide the comparison bar
Compare